1 / 7R$ 36.000.000,00
TERRENO - , BARUERI
Código de referência: 0373
0
Quartos
0
Banheiros
0
Vagas
18.000 m²
Área
Descrição
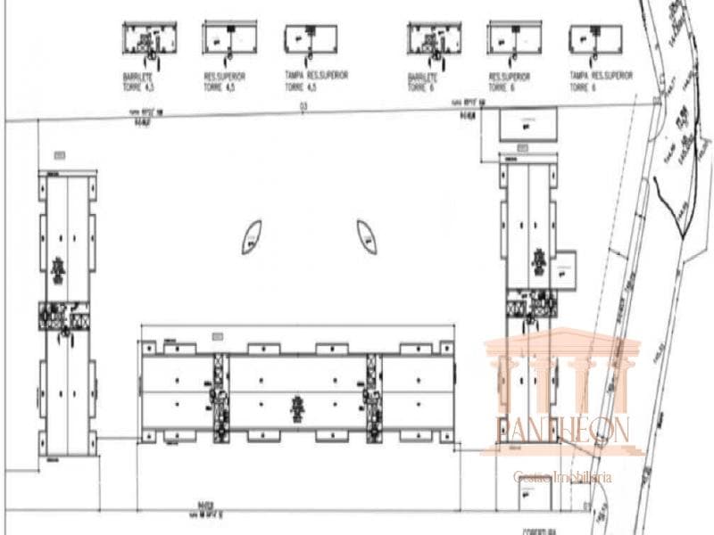
A área que você tanto procura está aqui!! O projeto foi desenvolvido em conformidade com o código de edificações , lei de zoneamento do munícipio de Barueri, e código de sanitário. As obras serão executadas em estrita observância ao disposto nos memoriais, partes integrantes do projeto e somente serão iniciadas após a emissão do alvará de construção pela prefeitura municipal de Barueri. As aberturas de iluminação, ventilação atenderão o artigo 88 da CEM. As escadas atenderão o artigo 81 da CEM. Os corrimãos terão H=0,90m e guarda corpos terão H=1,10m. O empreendimento atenderá, no que couber, a LC 345/2015. O empreendimento atenderá ao disposto na NBR15575- edificações habitacionais- desempenho. Área toda documentada, com saída para 02 ruas.


